











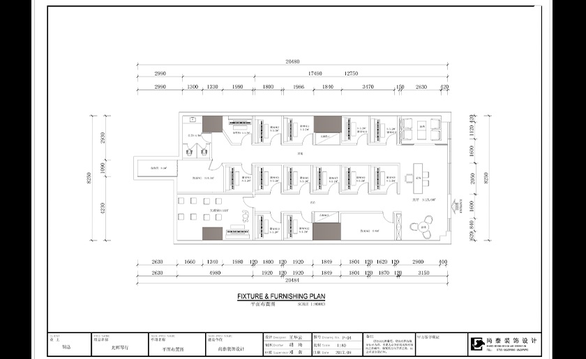
◆項目名稱:光輝琴行
◆項目地址:信義嘉御山
◆設計時間:2017.7
◆項目設計師:王華云
◆項目類型:商鋪裝修設計
◆項目面積:145㎡
◆設計風格:現代簡約
設計簡介
本案為光輝琴行位于深圳龍崗信義嘉御山的商鋪裝修設計
本著體現行業的特點,深圳裝修公司尚泰裝飾集團設計師
在地面、吊頂融入了鋼琴鍵及小提琴等設計元素
如以黑白優雅的鍵盤元素設計過道空間,在各個面上都能體現音樂藝術的魅力
合理的燈光運用,突出樂器的質感
隔音處理則是重點,避免出現噪音擾民的現象
教室充分運用色彩的對比與和諧,創造出理想的視覺感受
顏色鮮明的墻飾搭配鏡面不僅活躍氛圍還可以減少聲音外泄
設計背景
光輝琴行以音樂培訓和樂器銷售為中心,擁有專業的教學團隊
室內以鋼琴為主要載體普及少兒音樂教育,營造和培育良好的音樂學習氛圍
藝術教育培訓市場規模擴大,音樂教育占比高,行業集中度提升
我國藝術教育培訓市場規模從2008年的64億元不斷提升至2015年的462億元
年均復合增速32.62%,其中2015年較2014年同比增長了16%
預計2018年整體藝術培訓市場規模將超過800億元
音樂培訓作為其重要的組成部分,市場空間巨大
尚泰設計師充分分析琴行的地理區位和消費者取向
打造符合高端審美情趣及功能實用的商鋪格局

掃一掃關注官方微信

掃一掃訪問手機網站