作者: 尚泰裝飾設計 發表時間:2018-08-23瀏覽量:5580
好的設計,是經得起時間的考驗的。無論是什么類型的設計,它的出發點一定是客戶或者用戶,而非設計者本身。就拿餐廳裝修設計來說,一個好的餐廳,應該符合人的靈動性,符合人們的用餐規則或者形式,也更該突出餐廳的人性化,畢竟餐廳就是為人用餐而設計。接下來尚泰裝飾就帶領大家來看看“別人家”的餐廳裝修設計。
“鈴木食堂”是誕生于北京歷史核心區的生活品牌,已經成為胡同復興運動中最具持久性的標志之一。自2010年創立至今,“鈴木食堂”已經超越最初的餐廳功能,而發展成為包含精品咖啡,零售,以及畫廊在內的文藝集合體。通過定期舉辦展覽和工作坊,吸引了來自中國和日本的大量藝術家,設計師和手工藝人。從2012年開始,余留地與品牌緊密合作,在六個環境各異的社區里創造出別具一格的空間。
▼鈴木食堂外觀

臨近著名798藝術區,鈴木食堂麗都店位于住宅社區的底層裙房。該街區正因為缺乏吸引人的租戶和沉悶的建筑風格而陷入蕭條。設計的主要目標是創造一個市集般的目的地,從而成為歡聚的場所,并給鄰里注入活力。
▼鈴木食堂麗都店主入口

外立面由深灰色調的特制織物所覆蓋, 經過特殊處理的表面散發著金屬般光澤。像所有鈴木食堂的店面設計一樣,余留地團隊堅持發掘傳統材料的潛力,通過改進施工工藝,使新空間恰如其分的置身場所文脈之中,同時又呈現引人好奇的特質。
▼透明感的入口空間由復合木板與鋼板構成

▼外立面被特殊工藝加工的金屬質感織物覆蓋

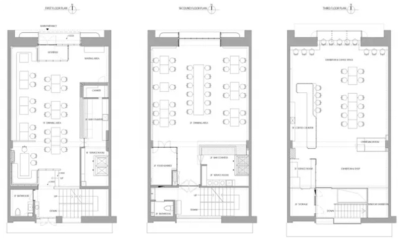
一樓的開放就餐區被若干私密的角落所環繞。整個空間的焦點是一個亭式結構的輕飲吧臺,同時連接著位于樓下的廚房。懸置在拋光混凝土天花下的定制燈架由黃銅管連接,照映著白色調的馬賽克地面和暖色調的木質桌椅。設計團隊通過在原有墻體層疊的粉刷表面進行雕鑿,產生出斑駁的白色淺浮雕效果,仿佛降雪后的北方山巒。
▼首層是以木質的廚房盒子為中心的開敞平面餐堂

▼亭子一樣的吧臺和廚房盒子

▼墻面層疊的舊涂料被重新雕琢成一幅主題為“雪降”的壁畫

▼街景通過門斗的過濾,被帶入首層餐堂

▼通往二樓的樓梯間與相鄰的私密角落

▼從樓梯間看一層就餐區

訪客可以從通往二層的樓梯間看到社區內部的花園和兒童活動場。占據二層的是一個閣樓般的空間。通過具有擁抱感的木墻圍和輕巧的金屬燈架系統,創造出一種節日般的氣氛。兩個附屬功能,定制廚房和食物商店,被可滑動開啟的門扇定義為房間里的房間。
▼二層如閣樓般的餐廳客座區

▼陣列懸掛于白色金屬珩架上的燈組創造一種節日般的氣氛

▼二層擁有獨立的開放廚房以滿足團體活動的需求

▼被折疊滑動門扇區隔的食物商店

三樓包含咖啡店,零售和小型展覽空間。平面可根據需要自由調整,仿佛一個隱世匠人的工作坊。南北兩側都設置開窗,為頻繁舉行的活動和展覽提供充分的采光和通風??Х劝膳_由整張鋁板制作,為三樓多變的室內布置提供簡潔明亮的背景。
▼樓梯間成為過渡空間,連接餐廳和具有混合功能的三層

▼一個微型畫廊懸置在樓梯間上方

▼自然光從看到鄰里的窗戶中漫射到空間之中

▼咖啡吧臺由整張鋁板制作而成

▼可以俯瞰街景的北側飄窗是最受歡迎的座位

“有差異的歸屬感”是余留地團隊在設計麗都店時追求的核心價值,這也貫穿于過去六年工作室為鈴木食堂設計的各家分店。通過對有限空間的精心規劃和傳統材料的創造性處理,每一家鈴木食堂都分享著令人熟悉難忘的親和感。而對于街道景觀“顯而不張”的回應,鈴木食堂為其根植的每一個地點帶來新鮮的特質和期待。
▼鈴木食堂麗位置地圖

▼各層平面圖

▼剖面透視圖

——
項目名稱:鈴木食堂麗都店
項目地址:北京市朝陽區將臺路
建筑面積:400平方米
建筑公司:余留地
完成年份:2016-2017
設計主持:宋方舟,岳峰
設計團隊:賴智薇,魏丹,宋蕾,蒲潔宇,馮瑩
品牌標識設計:廣煜
攝影師:梁志剛
圖片來源:@余留地
總而言之,好的餐廳設計,人在用餐時候的氣氛的是否舒適、是否符合人文理念,能夠決定這個餐廳的品質,更或者說決定這個餐廳的設計合格與否。

掃一掃關注官方微信

掃一掃訪問手機網站